1019 S Citrus Ave, Los Angeles

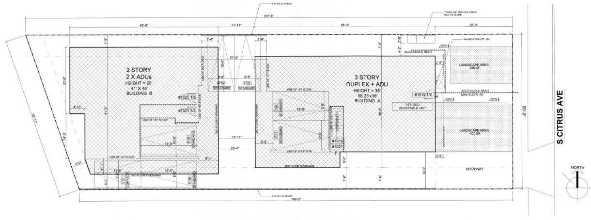
2026 New Construction 5 Units, 3 Story Duplex attached ADU + 2 Story (2) ADUs

PRE MARKET - NO RENT CONTROL

$4,195,000.00

CAP RATE: 5.29%

14.57 GRM

ISAAC DAVIDI DRE: 01819489

RE@thedavidigroup.com | +1 (310) 997-0311

O V E R V I E W

APN: 5084-010-004

No. of Units: 5 Units

No. of Bldg: 2 Buildings

Year Built: 2026

Building Size: 7,950 Sqft

Lot Size: 7,430.8 Sqft

Zoning: R2-1

List Price: $4,195,000.00

Annual Income: $288,000.00

Net Operating: $216,222.50

GRM: 14.57

$ / Unit: $839,000.00

$ / Sqft: $527.67

Opportunity Zone: No

Tenant’s Meters: Separately Metered . (Water/Electric/Gas)

Parking: 9 Spots

T H E O F F E R I N G

2026 NEW CONSTRUCTION

FIVE (5) UNITS, 3 STORY Duplex plus ADU + (2) 2 Story ADU

We are pleased to present a NON-RENT-CONTROLLED multifamily opportunity located in the highly desirable Mid-Wilshire / Fairfax-adjacent area. 1019 S Citrus Ave offers exceptional access to Hancock Park, Beverly Grove, and Downtown Los Angeles. Centrally located near major east–west corridors and the 10 Freeway, the property is surrounded by acclaimed dining, cafés, shopping, and cultural amenities, and sits within a high-demand rental market with strong long-term value growth.

This non-rent-controlled asset consists of a duplex with an attached ADU Plus (2) Rear ADU, totaling five well-designed residential units. The property offers functional layouts with strong tenant appeal and efficient operations. Separately metered utilities provide ease of management, while thoughtful systems help reduce ongoing operating costs.

For more information on this opportunity—or to explore the seller’s portfolio of high-quality multifamily and development assets across Los Angeles—reach out today to learn more.

P R O P E R T Y     D E T A I L S

R E N T   R O L L

SALES COMP

M A P S

 

S I T E P L A N

CONTACT US

RE@thedavidigroup.com | +1 (310) 997-0311

Information Provided By:

ISAAC DAVIDI, DRE#01819489

All information provided herein is deemed reliable but not guaranteed. Buyers and tenants are strongly encouraged to independently verify the accuracy of all details, including but not limited to property specifications, pricing, availability, and any other relevant information. All illustrations, photographs, and marketing descriptions are for informational purposes only and may not accurately represent the property or its surroundings. The seller, landlord, broker, and agent make no representations or warranties, express or implied, regarding the property or any associated marketing materials. All offers, availability, and terms are subject to change without notice.